招标通告

当前位置:首页  招标通告
青年教师周转房消防及生活给水设备采购安装招标公告
发布日期:2017-03-28浏览次数:544

一、招标编号:JJC/H-20170327-024

二、项目概况:

    1.项目地点:华体会体育内。

    2.招标范围:青年教师周转房消防及生活给水设备采购安装(详见招标文件)

三、投标人资质要求:

1.具有独立法人资格,具有消防及生活给水设备安装资质;机电安装资质三级以上;投标企业投标时必须提交相关资质原件及复印件(企业法人营业执照、税务登记证、组织代码),复印件必须加盖企业公章(红印)方可有效。提交授权委托书原件;

2.品牌企业在徐州必须有固定的售后服务机构与服务电话;

3.投标人应独立参与投标,每一个品牌企业只能针对本项目唯一授权;

4.投标人具有良好的企业资信,提供近二年内良好的经营信誉证明(3A或其他资信证明)

 5.投标人近二年内工程业绩表及合同2份(业绩表包括项目名称、合同金额、合同签定日期、用户单位名称、地址、联系人、电话等);

6.投标人为代理商的除提供本单位资料外,还应提供针对本项目的生产厂家授权委托书(加盖生产厂家鲜章)等相关资料;

7.详见招标文件。

四、资格审查方式及办法:

    1.本项目实行资格后审,招标人不予电话通知,资格条件审查在投标时进行。

    2.满足资格条件并进行投标工作的投标人应在2017年4月12日17:00时前填写的“投标人报名表”以word格式发送至招标人jianyuanzhaobiao@163.com邮箱。

五、投标文件及有关费用:

    1.招标文件售价:本项目收取标书费200元,送达投标文件时现金缴纳,售后不退(标书费收取在投标时进行)。

    2.投标保证金:统一收取投标保证金为  5000 元(每标段),在送达投标文件时缴纳。收取方式为现金(自带信封,现场封装)。

六、接受投标文件时间及地点:

    1.接受投标文件时间:开标前半小时。

    2.接受投标文件地点:华体会体育行政楼4楼403室。

七、开标时间及地点:

2017年4月19日14:30,华体会体育行政楼4楼403室公开开标。届时请参加投标的单位法定代表人或其授权委托人准时参加。

八、澄清与答疑:

1.招标文件的修改、补充和答疑文件将在招标人网站上以公告的形式发布,请投标人自行查看。

九、联系方式:

报名咨询张老师电话:0516—83996343

项目联系刘老师电话:13505210550 0516-83889015

监督电话:0516—83996085

  

  

附件1:投标人报名表.doc

附件2:青年教师周转房消防及生活给水设备采购安装招标文件.doc

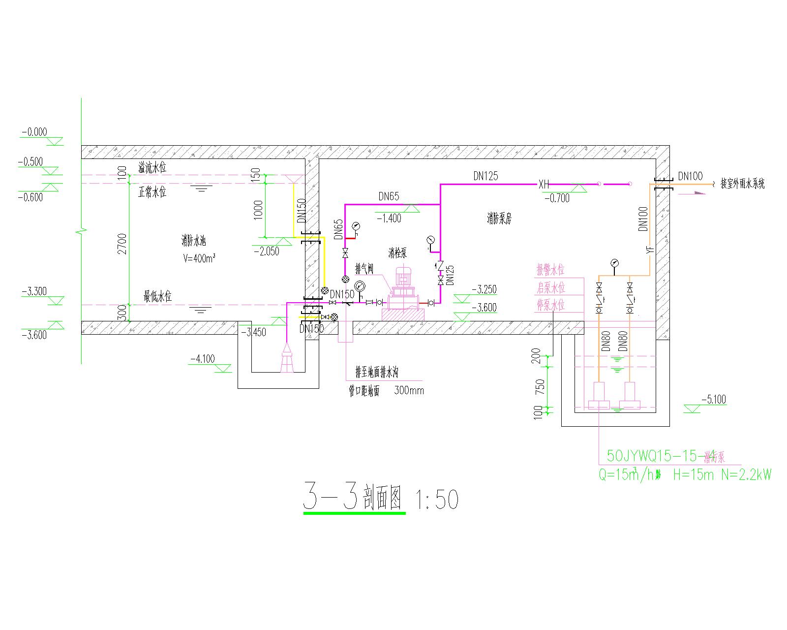
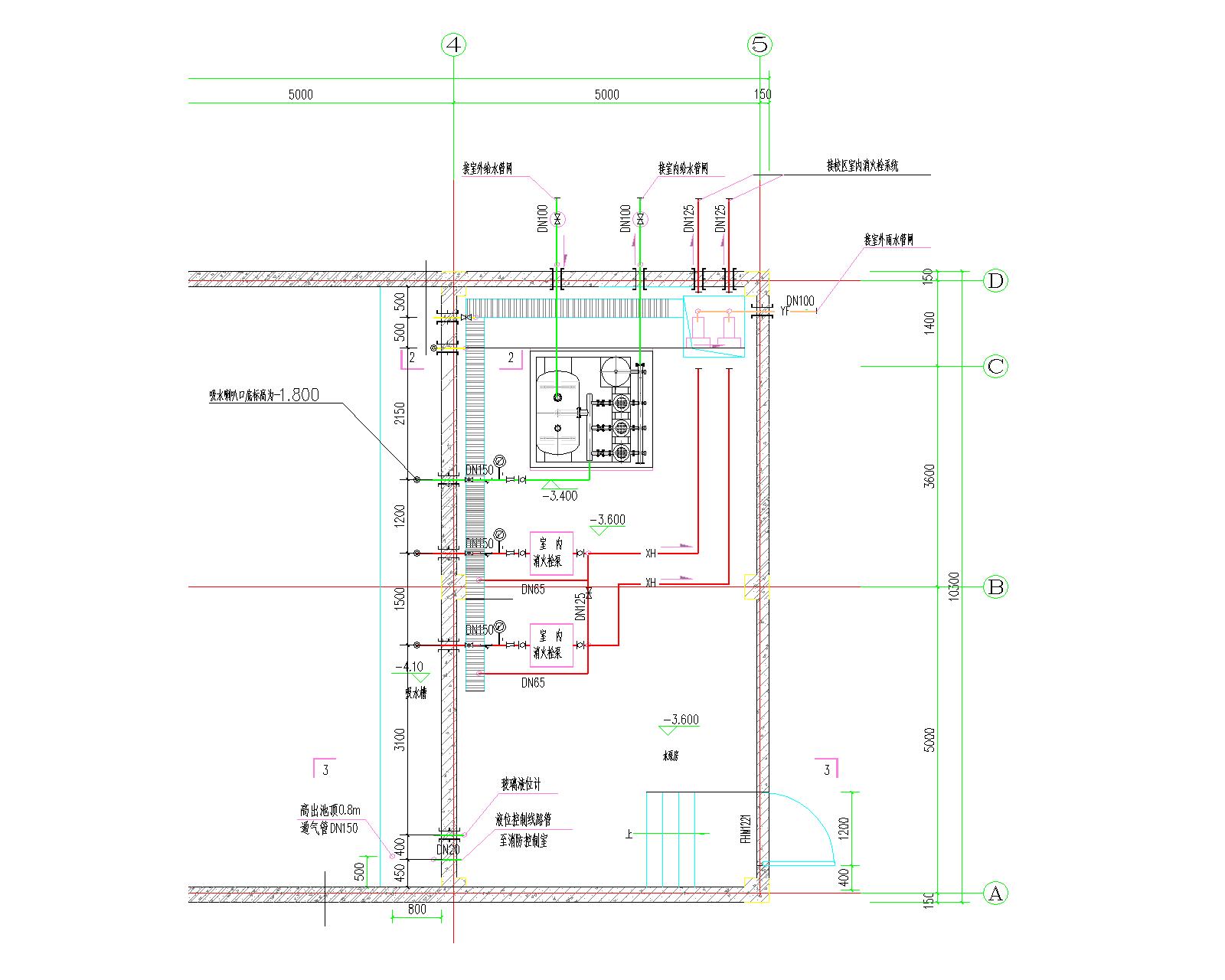
附件3:周转房泵房给水图1.jpg 周转房泵房给水图2.jpg  

 

书记信箱:sjxx@jsviat.edu.cn

院长信箱:yzxx@jsviat.edu.cn

    【微信】

    【微博】

    【校报】

地址:江苏省徐州市泉山区学苑路26号

|

邮编:221116

|

招生电话:0516-83888688/83889021

|

版权所有:华体会体育

|

苏ICP备11021512号-1

|

苏公网安备32031102000182